富士ベースは、関西を拠点に営業活動をしている関係上、
平成7年に起きた阪神大震災を体験し、
従来避難所になるべき学校の防球ネットのビーム(鍵穴式)が、
縦揺れによる衝撃ではずれ脱落している光景を多数目撃してまいりました。
当社では、左写真のように、2枚のプレートでバンド等に固定させ
るようにし、従来の鍵穴のPL部には、脱落防止金具を付属させ、
縦揺れ等のバウンドでも外れない構造にしております。
従来とおりの1枚PL(丸穴式)での加工も対応しております。
| 名 称 | 規格(使用鋼材) | 対象ビームセンターサイズ |
|---|---|---|
| φ101.6用ビームキャップ | φ114.3×4.5t×500 | φ101.6 |
| φ114.3用ビームキャップ | φ127.0×4.5t×500 | φ114.3 |
| φ139.8用ビームキャップ | φ152.4×5.0t×500 | φ139.8 |
ビームキャップ長は、1,000 1,500も製造可能です
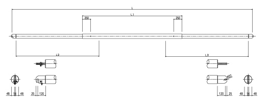
従来は、柱間の長さに合わせたセンターのビームに、キャップを両端につける方式が一般的でした
しかし、都市部では10mや9mのセンタービームを運搬するのは、車両規制等で難しい場所もあります
弊社では、運搬が便利な「アジャストビーム」を販売しております。
| 形式 | ピッチ | Aサイド(L2) | センター(L1) | Bサイド(L3) | 備考 |
|---|---|---|---|---|---|
| Φ101.6用 アジャスト (10m) |
10mピッチ | Φ101.6×4.2t×4m | Φ114.3×4.5t×4m | Φ101.6×4.2t×4m | 溶融亜鉛鍍金仕上 |
| Φ101.6用 アジャスト (6m) |
6mピッチ | Φ101.6×4.2t×2m | Φ114.3×4.5t×3m | Φ101.6×4.2t×2m | 溶融亜鉛鍍金仕上 |
| Φ114.3用 アジャスト (10m) |
10mピッチ | Φ114.3×4.5t×4m | Φ127.0×4.5t×4m | Φ114.3×4.5t×4m | 溶融亜鉛鍍金仕上 |
| Φ114.3用 アジャスト (6m) |
6mピッチ | Φ114.3×4.5t×2m | Φ127.0×4.5t×3m | Φ114.3×4.5t×2m | 溶融亜鉛鍍金仕上 |
| Φ139.8用 アジャスト (10m) |
10mピッチ | Φ139.8×4.5t×4m | Φ152.4×5.0t×4m | Φ139.8×4.5t×4m | 溶融亜鉛鍍金仕上 |
| Φ139.8用 アジャスト (6m) |
6mピッチ | Φ139.8×4.5t×2m | Φ152.4×5.0t×3m | Φ139.8×4.5t×2m | 溶融亜鉛鍍金仕上 |
角度をつけてビーム等を取り付けなければならないコーナー柱に使用します。
従来、ビームを角度をつけて取り付ける場合、バンド2本を使い段ちにしなければなりません。
この金物を使用すれば、1本のバンドで角度のある2方向にビームを並列で取付可能です。
ブレスワイヤーも2方向に取付可能です。
鋼管柱は、ストレートであるため、ネット・ワイヤー
ビームを取付けるためのバンドがずり下がります
ずり下がるのを防止する金具です。
![]() |
自在コーナー金物設置 |
|
手動式ウインチを取付ける架台です
いたずら防止・怪我防止のため、カバー付です。
コンクリート柱の天井キャップです
ビーム・ブレスワイヤー・昇降式の滑車等を取付
可能です。
受注生産品
当社は、「取引先」をご覧いただければ分かる通り、照明器具メーカー様と取引があります。
その中で各種投光器架台を手がけてきました。
防球ネット支柱関連のお問い合わせは富士ベース担当「藤原則彦」が承ります。
